




































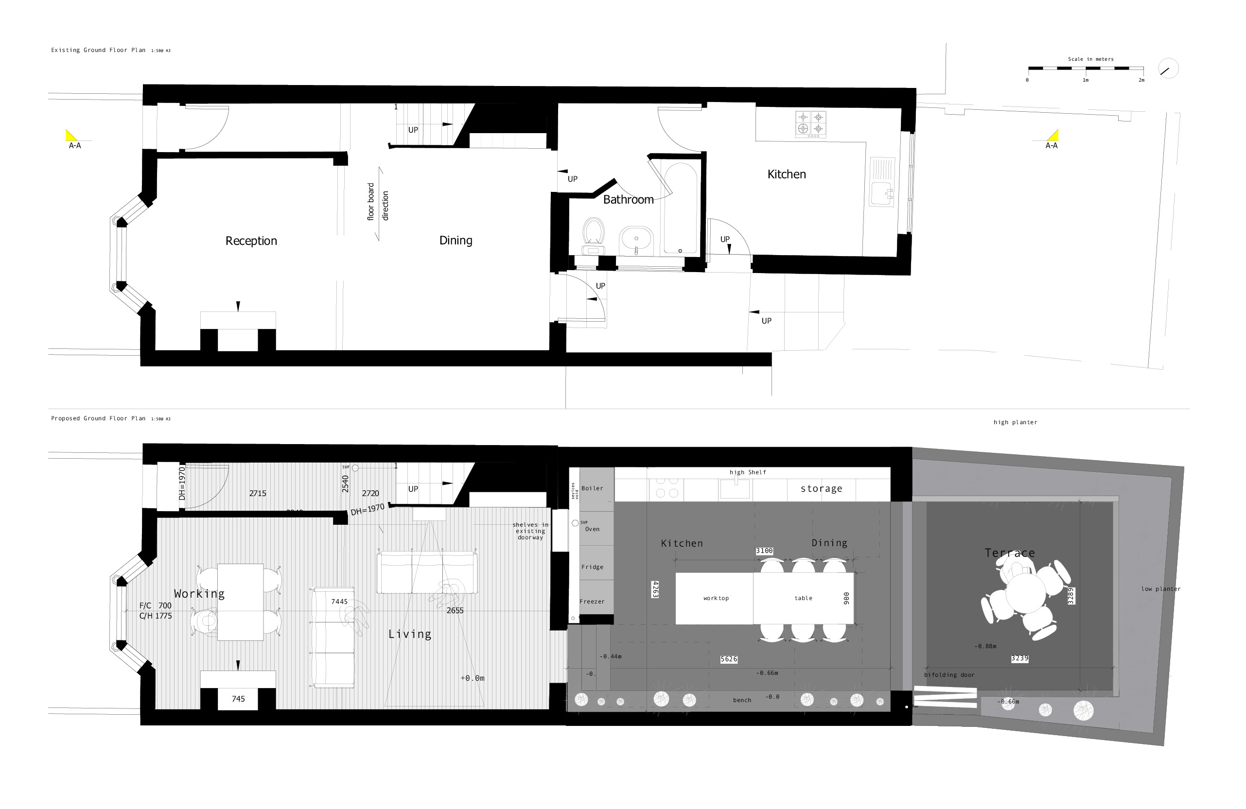
Can you increase a building’s volume while also enhancing it’s character?
Our proposal for this two-bedroom house
extension in Walthamstow seeks to enhance the natural light by introducing a
series of pitched volumes and internal cuts, providing an additional bedroom
with ensuite, a family bathroom and an increased ground floor with access to
the garden.















Patel/Dey House
Walthamstow, UK
Type: Residential, Refurbishment
Size: 150m2
Client: Private
Status: Under Construction
Date: 2016-2019
Walthamstow, UK
Type: Residential, Refurbishment
Size: 150m2
Client: Private
Status: Under Construction
Date: 2016-2019
Collaborators:
Project Team: Alex Smith, Ayse Cagin Bailey, Margherita Zompa, Michael Waters
Project Team: Alex Smith, Ayse Cagin Bailey, Margherita Zompa, Michael Waters